"平库货架规划设计要点"计划用连续三篇文章,以横梁式货架为例,从地坪承载力与变形、与建筑间距、存储单元、搬运设备、巷道净距、通道净距、地坪表面规整度、存储单元净距、货架防护、安全辅助件、消防安全、环境、结构设计和制造安装等方面,概述平库货架规划设计阶段所需要考虑的因素。
本文平库货架定义为配备人工操作的betway必威手机版官网下载进行存取操作的货架,以普通横梁式货架为主,还包括穿梭车式、重力式、后推式(即压入式)、驶入式等类型货架。
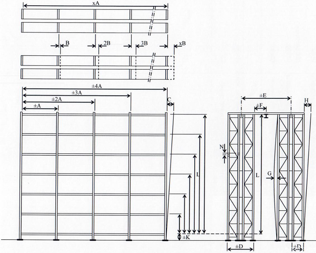
为了设计安全的货架,保证安全承载,货架结构设计人员至少应向用户获取以下信息:
● 货架所在场地与建筑的细节、周围环境、货架是否受到风荷载、雪荷载与地震荷载的作用;
● 货架的基础与地基特性;
● 存储货物的详细信息,包括承载辅助件(托盘、料箱等)的规格参数;
● 货架额定荷载的规定;
● 与货架相配套的搬运设备规格参数,操作时对货架产生的作用力;
● 是否设置背挡杆及设置后随之对货架的作用力;
● 存储单元荷载的均布性;
● 与其他结构的靠近与连接情况;
● 所有已知的关于货架在将来计划内的变动信息。
根据提供的相关技术信息,货架供应商应按照相关的标准规范进行货架的结构设计。设计者可以假定与所使用的搬运设备操作规范相关的净距均满足要求,从而在结构设计中可以忽略误操作偶然碰撞引起的作用力。
● 表面处理
主要是涂层颜色外观、涂层厚度、涂层硬度、涂层脱离主材抗性。
● 焊接质量
焊缝金属表面焊波应均匀,不应有裂纹、夹渣、焊瘤、焊疤、烧穿、弧坑和针状气孔等缺陷,焊接区不应有飞溅物。
焊缝表面不应有气孔,咬边深度不应超过0.5mm,累计总长度不应超过焊缝长度的10%。对接焊缝和贴角焊缝的外形尺寸极限偏差应符合GB50205的规定。
● 加工精度
如果约定了安装工作不是由货架供应商承担完成,那么货架供应商应在基于安装工人经验丰富并且能胜任的前提下,提供书面的组装与安装说明给客户。
货架的正确安装与其安全的结构设计同等重要。从事安装的人员应接受相关训练并实践,接受恰当的监管,以保障所有人的安全与健康。货架供应商的安装队伍应训练有素,经验丰富,以保证安装高效、安全。
安装的质量与精度对货架的性能与结构整体性有重要影响。安装完成后放货之前应进行竣工验收检测。
EN15620标准
SEMA标准
附:
用户对确保员工与存储货物的安全操作环境负有直接的责任,应负责:
a)确定存储货物或存储单元的最大重量与尺寸规格,以及可能发生的任何不符合规定的变动;
b)规定货架所在地坪的特性,确保其具有足够的强度和刚度承受荷载,并规定地坪面层、地坪锚栓限制、地坪平整度等;
c)规定诸如堆垛起重机或叉车等搬运设备运行时、设置托盘背挡杆时、推动和滑动与货架接触的存储单元时,施加给货架的力的大小;
d)规定场地位置,以进行风荷载、雪荷载和地震荷载的计算(如果有的话);
e)规定允许的最小净距,使货与货之间或货与货架之间碰撞的概率最低。相关数据应由搬运设备供应商提供;
f)指定货架所在环境,例如干燥、无污染的室内或暴露在风和自然气象下的室外,以确定防腐涂层的质量和耐久性或其他钢材表面的保护性处理措施;
g)详细说明地坪的平整度与直线度;
h)按照合同说明书的规定使用货架系统;
i)确保用户或用户指定的承包商安装设备时,正确执行货架供应商提供的详细组装和安装说明(首选货架供应商或制造商进行安装);
j)在需要的地方指定或提供立柱防护装置;
k)环境(包括楼板)是干燥的、无化学腐蚀的;
l)定期检测货架结构,以确保任何损坏均已得到修复,或损坏的部件已更换为来自同一制造商的相同规格新部件;
m)配备在叉车和货架的使用方面进行过培训的人员,以安全使用货架;
n)在储存区域提供适当的取暖和照明。
货架供应商应负责:
a)根据规划要求,规定货架体系在安全操作条件和承载力方面的技术限制,可以通过提供包含货架详细尺寸和包含操作净距与巷道净宽的图纸来实现。这样就可以识别设计中已经包含的货架具体的特点,如施加的荷载或非标的操作状况。任何承载辅助件均应识别;
b)确定作为标配的货架保护装置,以及安装后可提供的附加货架保护装置;
c)确定已在货架布局或结构设计中考虑的任何叉车操作类型或使用标准;
d)按照指定标准规范进行货架的结构设计;
e)需要的话,提供安装必威betway西汉姆联官网,安装人员应经过培训与实践并有效监督。在安装完成后应由胜任人员对货架进行正式的完工验收检测,并向客户签发正式的移交证书,以确认工作已按照规定的标准完成;
f)提供可更换部件的采购必威betway西汉姆联官网,以便对货架进行有效的维修和维护;
g)为用户提供持续的技术指导,特别是有关货架的使用改变、负载变化或为适应新要求而重新布置货架的结构的影响;
h)建议用户定期检查货架,并制定正式的维修计划,以处理可能发生的意外损坏;
i)提供已认可的安全色标示的荷重警示牌,说明货架体系使用的限制范围。
本站的原创文章,请转载时务必注明出处:稳图WESAFE,不尊重原创的行为我们将追究责任。