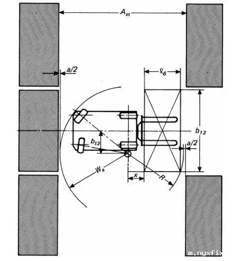
问:我们的地坪沉降严重,想通过垫垫片的方式找平。柱脚垫片可以堆叠得很厚吗?答:柱脚底板下面允许使用垫片,以保持货架的竖直和水平。垫片的材料应满足或超过地坪的设计承载强度。 ......查看详情
-
Wesafe Company为统一中国货架标准而努力
专注货架安全检测稳图认为,防微杜渐是安全管理的根本方法,稳图安全检测及配套咨询、 培训, 可以让企业制度性解决仓储货架及配合设备安全管理问题,并且我司出具验收检验报告可作为您重要的评定依据。 -
Wesafe Company您的货架还安全吗?
海因里希安全法则300:29:1 当一个企业有300起隐患或违章,非常有可能发生29起轻伤或故障,另外有一起重伤、死亡事故。大量数据案例表明提高员工安全认知及权威机构的定期检测是有效避免安全隐患的重要途径。 -
选择有资质认定的
货架安全检测公司稳图获得中国合格评定国家认可委员会CNAS资质(国际互认)、市场监督管理局CMA资质(国内强制)及英国仓储设备协会SEMA货架检测工程师资质(欧美澳等认可),并参编多项国家及行业货架标准,开展独立第三方货架安全检测业务。




























